See an earlier report on the Linden Green Line in the player above.
COLUMBUS, Ohio (WCMH) — Plans for a miles-long park through the Linden and Northland neighborhoods are moving forward.
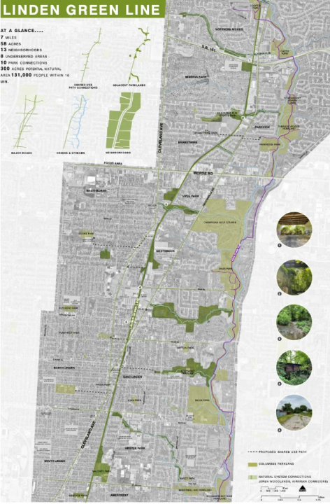
The 58-acre Linden Green Line was purchased for $5 million in October and is expected to be the first linear park in central Ohio. Columbus City Council is seeking funding for the project, as it approved an ordinance this week to apply for grant funding from the Federal Highway Administration.

The council projects that 131,000 residents nearby will take advantage of the park. It will provide active transportation and easily accessible greenspace that council says will reconnect residents to jobs, schools, parks, nature and cultural destinations.
Brad Westall, the planning manager for the city’s Recreation and Parks Department, appeared before council Monday, saying the project will be especially meaningful to the Linden community.
The Linden Green Line will pass by 19 schools along its seven miles, along with churches, cultural hubs and more. It will also run directly through the Kilbourne Run Sports Park, an anticipated project the department is also working on.
The path will begin at Windsor Park, near 17th Avenue, and come to an end at Cooper Park, shortly after passing under State Route 161.
Westall said the department has plans for 40 access points for the park that could include play spaces, family shelters, basketball courts and more.
“That kind of access makes for 131,000 people to have a chance to enjoy something that, right now, they have nothing at all to be there,” Westall said.
In October, the Recreation and Parks Department said that construction will begin in March 2025. A completion date has yet to be announced.
