COLUMBUS, Ohio (WCMH) – One of Columbus’ most popular pizza shops is revamping its patio space on North High Street.
The fenced-in, concrete patio sandwiched between brick buildings and bars offers reprieve from bustling sidewalks along the Short North. Maintained by the owner of Mikey’s Late Night Slice – and Oddfellows Liquor Bar next door – the “pocket park” on North High Street lacks permanent structure, instead filled with a rotating cast of benches and chairs and temporary tents.
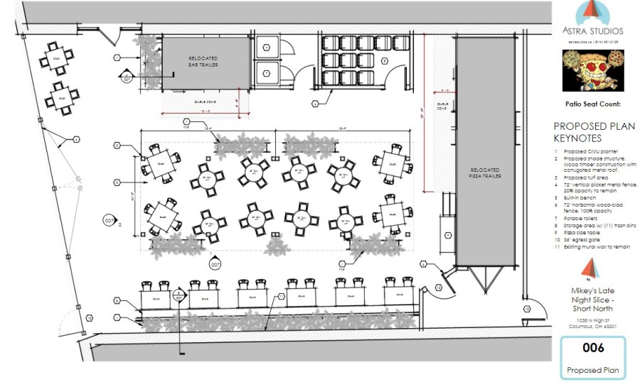
Mikey Sorboro, owner of the Columbus pizza chain and bar, intends to make the space a permanent beer garden, where Oddfellows patrons can rest under shade and snack on sizzling slices of pizza. For now, he’s making do with some reshuffling and semi-permanent construction.
Instead of the current hodgepodge of tables clustered between a row of picnic tables and the permanently stationary pizza trailer, the patio redesign moves the pizza trailer – and its line of customers – to the back, where a small parking lot currently sits, freeing up space for the smaller bar cart near the entrance to Oddfellows. Replacing the picnic tables along the mural wall will be permanent bench seating, according to the proposed layout.
Foot traffic will move around the patio’s centerpiece: A wood-framed and steel-roofed pergola-type structure, shielding rows of high-tops from sun and rain. Concrete planters around the pergola’s perimeter will both liven the space and serve as natural barriers between the seating area and the flow of traffic.
“We’re really trying to make this patio kind of what it should be,” Sorboro told the Italian Village Commission at a recent meeting.
The commission, an advisory group tasked with evaluating development proposals in the neighborhood, has yet to formally approve Sorboro’s design. But Sorboro’s face is a familiar one to commissioners, as he’s stood before them over the years proposing temporary modifications to the gated patio space.
Commissioners seem likely to approve the project, noting their appreciation for Sorboro’s work over the years to improve the space’s function as an outdoor gathering space for hungry bargoers. Like other design concepts, Sorboro intends for the steel-and-wood pergola to be a transient addition, with a more permanent structure to better match the neighborhood’s historic architecture – something “industrial,” the commission recommends.
After approval by the commission, Sorboro’s proposal will need the city’s sign-off to begin construction.






