COLUMBUS, Ohio (WCMH) – Two bars flanking the north and south borders of Ohio State University’s campus face existential threats – if developers can get their projects approved.
After hours of questions, criticisms and public comments, the University Impact District Review Board last week rejected two proposed apartment buildings along North High Street. Board members encouraged developers to revise their plans to fall in line with its recommendations and heed students’ and residents’ concerns.
Although the proposals are independent of each other, they are similar in several ways: Both are variations on a 5-over-1 apartment model – a typically five-story, wood-framed building built over a concrete platform that is popular for its low construction costs. Both target young adults as prospective tenants – one marketing itself as a “student apartment building,” while the other hoping to fill with graduate students and young professionals.
And both want to tear down multiple historic buildings to make room.
Proposal to tear down Bier Stube
A generations-old staple for cheap beers and camaraderie, the Bier Stube sits in the middle of a block that Buckeye Real Estate wants for its apartment building.
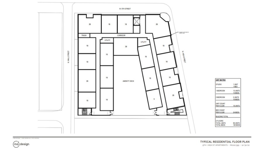
The Columbus-based real estate company with hundreds of rental properties in the off-campus area proposed a 6-story, 120-bed complex at the intersection of North High Street and West Ninth Avenue. Construction would require the demolition of the Bier Stube, 14-0 Express carryout, Portofino’s Pizza and Yau’s Chinese Bistro, four businesses either longstanding in their own right or occupying some of the last historic buildings along the section of the High Street corridor.
Layout mock-ups for the building show mostly one-bedroom apartments, with a few two-bedroom units and one studio per floor. The first floor contains “amenity space” for residents and room for a leasing office but no commercial space – a break from current zoning requirements that mandate development on that parcel of land include room for businesses.
Justin Garland, vice president of business development at Buckeye Real Estate, told the board the urgent need for dense housing in the University District necessitates a waiver of the business space development requirement. Although the company doesn’t have an estimated rental price per unit yet – Garland said they would hopefully be “lower than market value” – the company sees graduate students and young professionals occupying the building.
“Rents are expensive in the area. The only way to combat that is to build more housing,” said Garland.
Buckeye Real Estate’s proposal, Garland said, outfitted with “traditional masonry details” to better match the surrounding buildings, would “complement and enhance the overall community.”
Board members were hesitant to approve a modern development atop the remnants of historical buildings – two of which date to the early 20th century. Garland said preserving any of the buildings would cut too much into the proposal’s parking plans.
Among the concerns raised by students who spoke at the meeting were the lack of information about rental prices and the assumption that might be too high for many students. Others were keeping a local touchstone and protecting immigrant-owned businesses.
As High Street fills up with Campus Partners’ 5-over-1 buildings and chain restaurants, the intersection of High Street and West Ninth Avenue has become one of the last beacons of local business near campus.
Several board members suggested revising the plan to incorporate more historical preservation, whether that be modifying the layout or taking more design inspiration from existing structures along the street. The board also recommended the addition of pedestrian walkways and townhome-style street fronts that better mirror other homes nearby.
Even with the recommendations, some board members expressed they were hesitant to approve a project already proven to be unpopular among developers’ target demographic.
“A call for something that’s to be preserved by community members is a place, it’s a location. It’s not a brick pattern, it’s not ornamental, it’s not a keystone, it’s not purple brick – it’s a place. And those things don’t get replaced,” member Kay Jones said. “Once they’re gone, they’re gone.”
Little Bar under threat
American Campus Communities sought a 1.72-acre piece of land currently owned by the University Baptist Church that is west of North High Street, taking up most of the block between West Lane and Norwich Avenues. Little Bar is separated from the rest of the parcel by an alley that developers said will include a bridge between the two buildings.
Where Little Bar stands, developers envision an 80-bed unit with room for the University Baptist Church on the first floor. Where the University Baptist Church stands – and has stood since the 1960s – American Campus Communities see more apartment units atop a 104-space parking garage, to be shared by the church and apartment tenants.
Representatives from American Campus Communities, a Texas-based real estate company specializing in off-campus student housing, have pitched iterations of the development project to the University Area Commission Zoning Committee since September. Originally proposed to be a pair of 12- and 9-story buildings standing at nearly 100 feet tall, the latest proposal before the review board outlined a 7-story development with retail space on the first floor.

After being rejected by the University Area Commission for the proposal’s lack of parking and its requested height variance – at that time, developers wanted an 88-foot building in a district with a 72-foot height limit – developers had little time to revise their deck before the review board meeting. What they showed on Jan. 26 were the same, rejected renderings with verbal edits to the plans.
The board acknowledged that the updated plan sounded in line with the district’s plan, but several board members balked at the idea of approving a project they could not yet see.
American Campus Partners will likely present an updated version of the proposal to the University Area Commission Zoning Committee at its Feb. 6 meeting.











